Provisionsfrei – Gepflegtes Einfamilienhaus mit Potenzial in Alling
In ruhiger und familienfreundlicher Lage präsentiert sich dieses gepflegte Einfamilienhaus (Bungalow) auf einem ca. 406 m² großen Grundstück als ideales Zuhause für Familien oder Paare mit Platzbedarf. Die gewachsene Wohngegend überzeugt durch ihre angenehme Nachbarschaft und ein entspanntes Wohnumfeld mit viel Grün.
Das Haus wurde im Jahr 1966 in Massivbauweise errichtet und seither ausschließlich von den Eigentümern selbst bewohnt sowie stets sorgfältig gepflegt. Es befindet sich in einem sehr ordentlichen Zustand, bietet jedoch gleichzeitig Potenzial für individuelle Renovierungs- und Modernisierungsmaßnahmen.
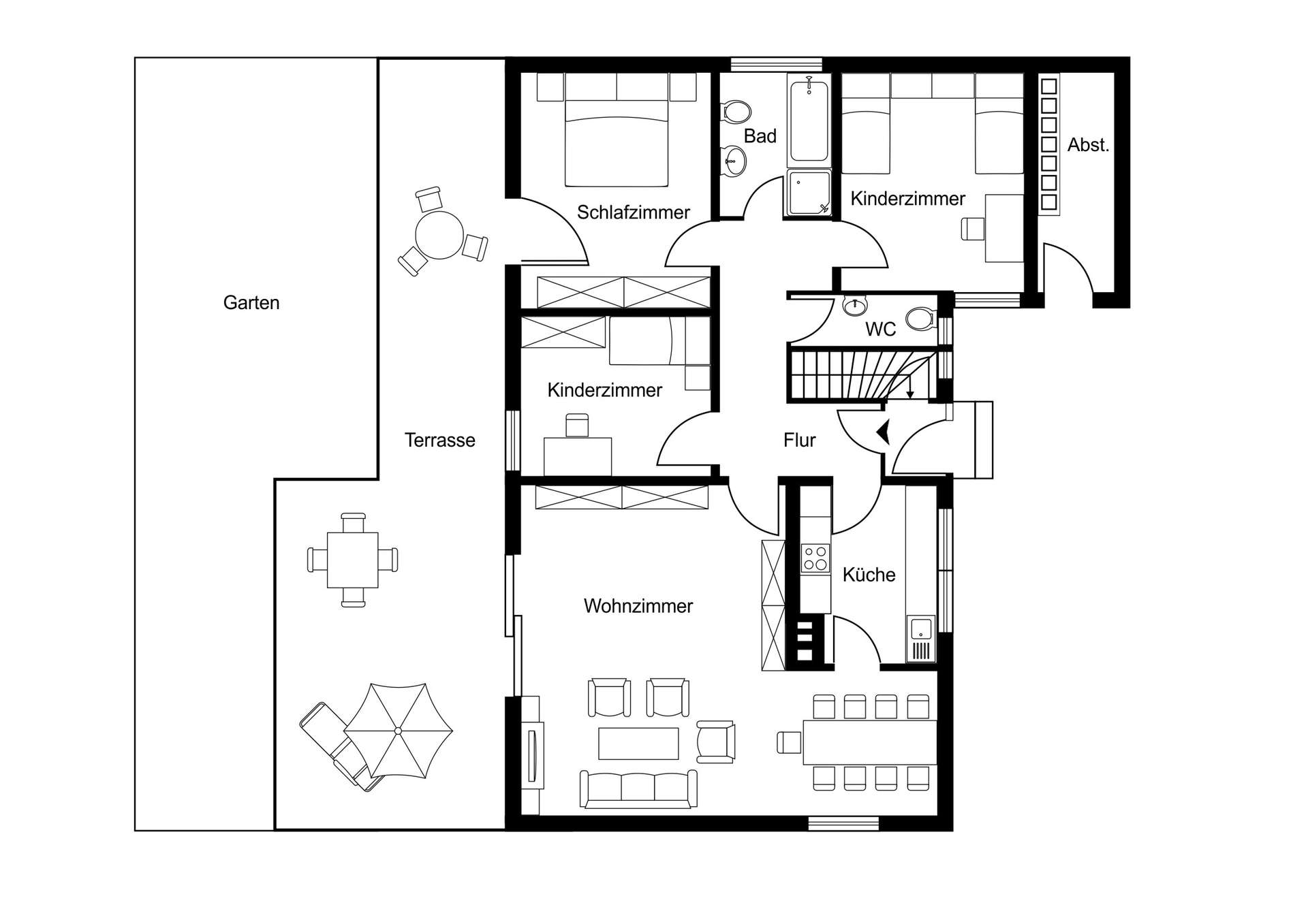
Auf ca. 105 m² Wohnfläche verteilen sich vier gut geschnittene Zimmer. Das Herzstück des Hauses bildet das großzügige und lichtdurchflutete Wohnzimmer mit direktem Zugang zur großen Terrasse mit Pergola. Der angrenzende Essbereich schafft eine harmonische Verbindung zwischen Wohnen und der separaten Küche.
Die drei Schlafzimmer können vielseitig als Kinder-, Gäste- oder Arbeitszimmer genutzt werden. Das Tageslichtbad ist mit Dusche, Badewanne und Waschbecken ausgestattet. Ergänzt wird das Raumangebot durch ein praktisches Gäste-WC.
Das Haus ist vollständig unterkellert und bietet dadurch großzügige Nutzflächen – ideal für Hobby, Vorrat, Werkstatt oder zusätzlichen Stauraum. Insgesamt sind drei Räume im Keller ausgebaut und somit auch grundsätzlich für eine Wohnnutzung geeignet. Einer dieser Räume im Kellergeschoss wurde durch die Eigentümer liebevoll als Bauernstube eingerichtet. Hier ist sogar ein Kamin vorhanden.
Ein praktischer Lagerraum neben dem Hauseingang sorgt für weiteren Komfort im Alltag.
Der gepflegte Garten lädt zum Spielen, Gärtnern oder Entspannen ein und bietet ausreichend Platz für die ganze Familie.
Dem Gebäude ist zudem eine Garage zugeordnet, welche sich unmittelbar am Ende der Straße befindet. An dem entsprechenden Grundstück besteht ein 1/5 Miteigentumsanteil, was einer anteiligen Grundstücksfläche von ca. 39 m² entspricht. Parkplätze stehen zudem stets direkt vor dem Gebäude zur Verfügung.
Beheizt wird die Immobilie über eine Öl-Heizung mit Herstellungsjahr 1990. Der Heizungsbrenner wurde im Jahr 2017 erneuert. Das Dach wurde im Jahr 2011 saniert. Im Jahr 2021 erfolgte ein Fassadenanstrich. Die Fenster wurden im Jahr 2001 ausgetauscht.
Dieses Haus vereint eine ruhige Lage, eine solide Bausubstanz und viel Potenzial zur Verwirklichung Ihrer Wohnträume – eine seltene Gelegenheit in begehrter Lage von Alling.
Die charmante Gemeinde Alling liegt im begehrten westlichen Umland von München und verbindet ländliche Idylle mit hervorragender Anbindung an die Landeshauptstadt. Eingebettet in eine reizvolle Voralpenlandschaft mit weitläufigen Feldern, Wiesen und kleinen Wäldern bietet Alling ein naturnahes und zugleich komfortables Wohnumfeld.
Die Münchner Innenstadt ist sowohl mit dem Auto als auch mit öffentlichen Verkehrsmitteln gut erreichbar. Über die nahegelegenen Autobahnen A96 und A99 sowie die Bundesstraße B2 besteht eine schnelle Anbindung an München, Germering, Fürstenfeldbruck und das Fünfseenland. Die S-Bahn-Stationen in den umliegenden Orten Gilching, Germering und Fürstenfeldbruck sorgen für eine bequeme Verbindung in die Innenstadt und zum Flughafen München. In Alling gibt es zudem verschiedene Busverbindungen.
Alling selbst verfügt über eine sehr gute Infrastruktur für den täglichen Bedarf. Einkaufsmöglichkeiten, Bäcker, Ärzte, Kindergarten und Grundschule befinden sich direkt im Ort. Weiterführende Schulen sowie ein umfangreiches Angebot an Dienstleistungen und Freizeitmöglichkeiten finden sich in den nahegelegenen Orten Fürstenfeldbruck, Gilching und Germering.
Besonders hervorzuheben ist der hohe Freizeit- und Erholungswert: Zahlreiche Rad- und Wanderwege, Reitmöglichkeiten, Sportvereine sowie nahegelegene Golfplätze bieten vielfältige Möglichkeiten zur aktiven Freizeitgestaltung. Das Fünfseenland mit Ammersee und Starnberger See ist in kurzer Zeit erreichbar und lädt zu Ausflügen und Erholung am Wasser ein.
Alling steht für eine hohe Lebensqualität in ruhiger, familienfreundlicher Umgebung – ideal für alle, die naturnah wohnen und dennoch die Nähe zur Großstadt nicht missen möchten.
– Schönes Grundstück mit ca. 406 m² in ruhiger und familienfreundlicher Lage
– Freistehendes, gepflegtes Einfamilienhaus (Bungalow) erbaut 1966 in Massivbauweise
– Solide Bausubstanz mit Modernisierungspotenzial
– 4 Zimmer, 3 Schlafzimmer und 1 Badezimmer
– Großes, helles Wohnzimmer mit Zugang zur Terrasse
– Separate, helle Küche
– Gäste-WC
– Flur
– Großzügige Terrasse mit Pergola
– Großer, gepflegter Garten
– Praktischer Abstellraum neben Hauseingang
– Vollständig unterkellert und somit viele Nutzungsmöglichkeiten sowie Stauraum
– Kamin im Untergeschoss
– Garage auf separatem Grundstück mit anteiliger Grundstücksfläche von ca. 39 m²
– Rollläden an den Fenstern, teilweise elektrisch
– Öl-Heizung im Untergeschoss (Baujahr 1990, Heizungsbrenner mit Baujahr 2017)
– Dachsanierung im Jahr 2011 sowie Montage Schneefang im Jahr 2021
– Fassadenanstrich im Jahr 2021
– Austausch der Fenster im Jahr 2001
| Objekt ID: | 152 |
| Verfügbar ab: | nach Vereinbarung |
| Zimmer: | 4 |
| Schlafzimmer: | 3 |
| Badezimmer: | 1 |
| Wohnfläche: | 105,00m² |
| Grundstücksfläche: | 445,00m² |
| Grundfläche: | 100,00m² |
| Baujahr: | 1966 |
| Objektzustand: | gepflegt |
| Anzahl Garagenstellplätze: | 1 |
| Stellplätze: | 1 |
| Balkone: | 1 |
| Bodenbelag: | Fliesen, Teppich, Parkett |
| Badausstattung: | Dusche, Badewanne, Fenster |
| Energieausweis-Ausstellungsdatum: | 02.03.2026 |
| Energieausweis-Jahrgang: | ab Mai 2014 |
| Energieausweis-Gebäudeart: | Wohngebäude |
| Befeuerungsart: | Öl |
| Energieeffizienzklasse: | H |
| Wert des Endenergiebedarfs: | 269,20 kWh/(m²*a) |
| Art des Energieausweises: | Bedarf |
| Energieausweis gültig bis: | 01.03.2036 |




































